Description

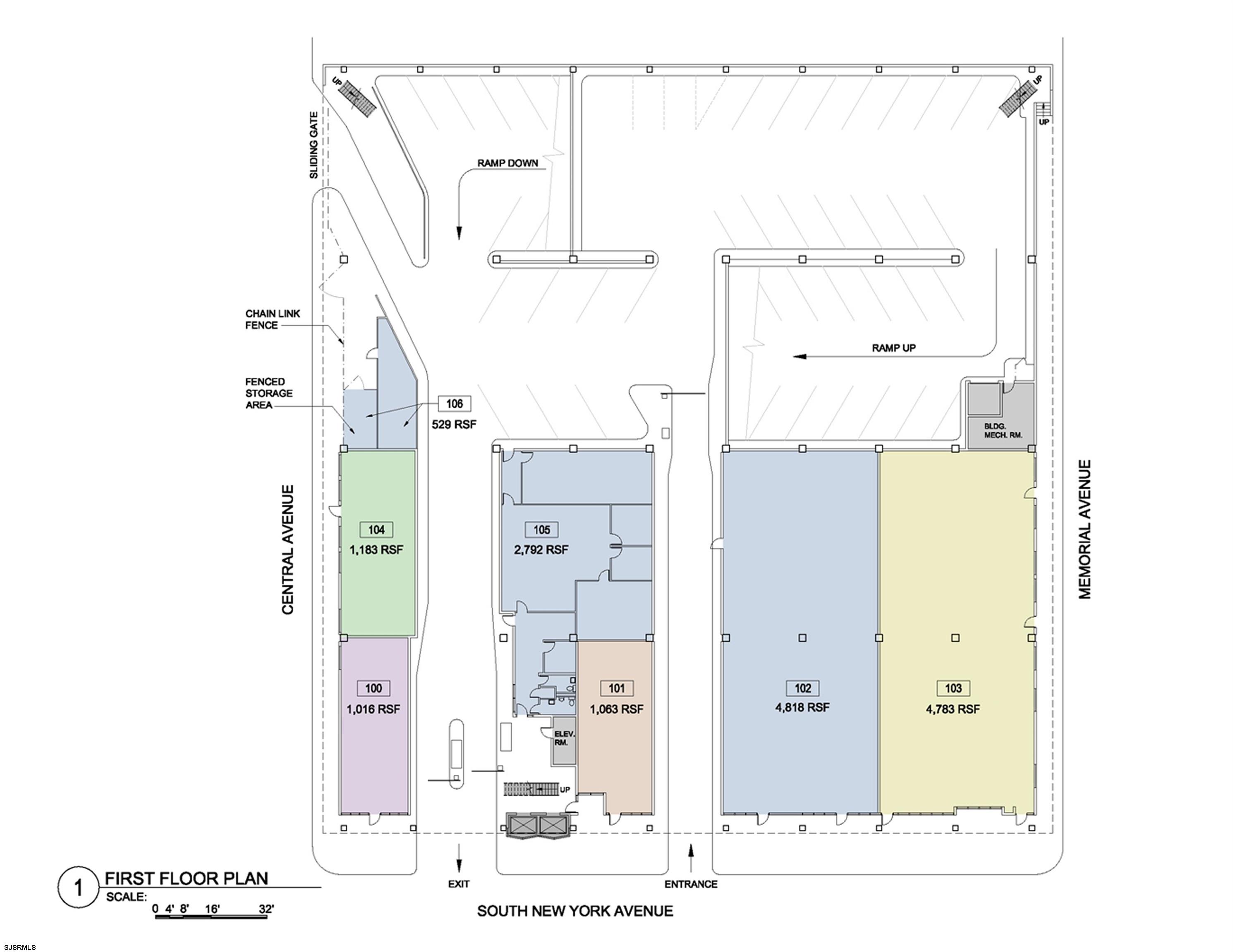
Commercial, Office, Retail & Medical Space Available at 17 S. New York Avenue. Centrally located in Atlantic City’s business district and surrounded by new development, professional office, and medical users. Five suites available ranging from 1,016 SF to 4,818 SF, with up to 9,601 SF contiguous. Each suite is self-contained and features window-lined façades offering excellent visibility and natural light. Available Suites: • Suite 100: 1,016 SF corner unit • Suite 101: 1,063 SF corner unit • Suite 102: 4,818 SF fully built-out office space (formerly occupied by a state entity) • Suite 103: 4,783 SF medical suite with professional layout suitable for all medical uses • Suite 105: 2,792 SF office space, fit-out ready • Call for marketing package and floor plans.

Share This Listing

Amenities

  • Heating:Forced Air   
  • Fire Sprinkler System  
  • Handicap Features  
  • Cooling:Central  
  • Public Sewer  

PROPERTY LOCATION / MAP

Last Database Update:  04/19/2026
Decorative image
Broker ReciprocityListing Courtesy of LEVIN COMMERCIAL REAL ESTATE, LLC.
© South Jersey Shore Regional MLS. All rights reserved. The data relating to real estate for sale on this web site comes in part from the Broker Reciprocity Program of the South Jersey Shore Regional MLS. Real Estate listings held by brokerage firms other than Desatnick Real Estate are marked with the Broker Reciprocity logo (a little black house) and detailed information about them includes the name of the listing brokers. Information is deemed reliable but is not guaranteed. The broker providing these listings to be correct, but advises interested parties to confirm them before relying on them in a purchase decision. The information being provided is for the consumer's personal, non-commercial use and may not be used for any purpose other than to identify prospective properties in which they may be interested in purchasing.

REQUEST ADDITIONAL INFORMATION

17 S New York Avenue, Atlantic City NJ
 Bedroom(s)   |     Bathroom(s)   |   For Sale: $ 20   |   MLS Number: 603221   |   Property Type: COMMERCIAL/INDUSTRIAL

(Information Above Will Appear At The Top Of The Email That Is Sent To Desatnick Real Estate)

Decorative image
Decorative image
Decorative image
Decorative image
Decorative image
Hide Details
17 S New York Avenue Atlantic City, NJ
$ 20